Other - Barcelona
Tour Virtual
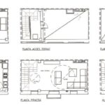
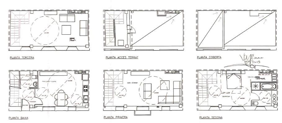
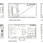
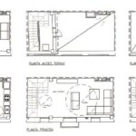
Description
Characteristics
ReferenceT-392
Town/CityLa Barceloneta
CountyBarcelona
LocationSpain
Floor Area124 m²
Plot Area147 m²
Price890,000€ 925,200 €
ConditionRefurbished
Single Bedrooms0
Double Bedrooms3
Bathrooms3
Distance to sea200 m
Floor Number4
IBI1.366,16 €
Floor TypeStoneware and floating floor
HeatingElectric
Electrical Installation220V
Hot WaterThermo Electric
Exterior TypeExternal
Extras
Balcony✓
Heating✓
Appliances✓
Bright✓
Light✓
Furnished✓
| Energy efficiency scale | Consumption (kWh/m² year): 0 |
Emissions (kg CO₂/m² year): 0 |
|---|---|---|
| VERY EFFICIENT | ||
|
0
|
0
|
|
| NOT EFFICIENT |
NOTE: The information on this property may have changed, therefore we are not responsible for the reliability of the information. Please contact us for exact characteristics.























































